Broad Ripple Random Ripplings
search menu
The news from Broad Ripple
Brought to you by The Broad Ripple Gazette
(Delivering the news since 2004, every two weeks)
Subscribe to Broad Ripple Random Ripplings
Brought to you by:
Howald Heating & Air Decorators' Show House Kenney Insurance

Everything Broad Ripple HomearrowRandom Ripplings Homearrow2021 04 01arrowRandom Rippling

back button return to index button next button
Glendale Library Relocation Meeting - March
by Alan Hague
posted: Apr. 01, 2021

The Indianapolis Public Library held a public Zoom meeting on March 18, 2021, to discuss the current designs for moving the Glendale Library to the John Strange School property at 62nd and Olney (about 3/4th of a mile east of Glendale). There were around 50 in attendance.
Renderings were shown of the interior and exterior of the proposed library. Then, attendees broke into virtual groups to discuss the ideas presented. At the end, the notes from the breakout groups were read.

Site plan
Site plan
image courtesy of Indianapolis Public Library mtg


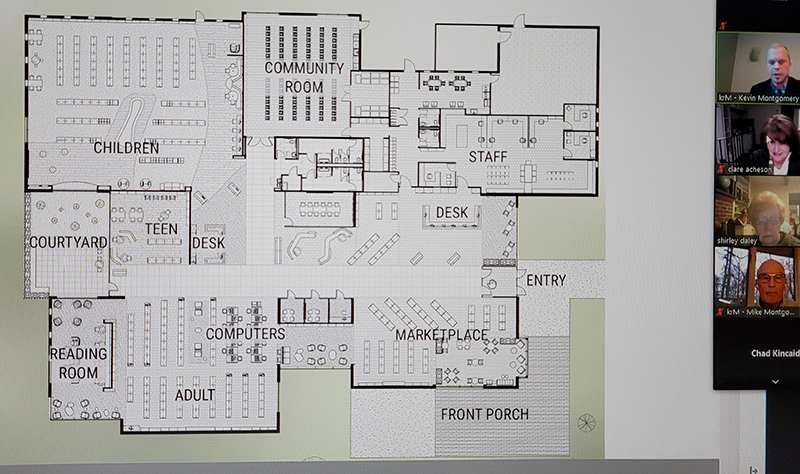
Floor plan
Floor plan
image courtesy of Indianapolis Public Library mtg


Brought to you by:
Angie Mercer Insurance Broad Ripple State Farm Thompson Home Sales


Exterior
Exterior
image courtesy of Indianapolis Public Library mtg


Exterior
Exterior
image courtesy of Indianapolis Public Library mtg


Brought to you by:
Pawn Shop Pub EverythingBroadRipple.com Broad Ripple Brewpub


Interior
Interior
image courtesy of Indianapolis Public Library mtg


Interior
Interior
image courtesy of Indianapolis Public Library mtg


Brought to you by:
VirtualBroadRipple.com RandomRipplings.com EverythingBroadRipple.com





alan@broadripplegazette.com
back button return to index button next button
Brought to you by:
EverythingBroadRipple.com RandomRipplings.com VirtualBroadRipple.com